****服务热线:+86-010-82719905
网站公告:
诚信为本:市场在变,诚信永远不变...
联系我们
+86-010-82719905
地址:
北京市后沙峪国门1号4FB06
公司:
北京华京顺通科技有限公司
手机:
+86-13436309569
传真:
+86-010-82717017
新闻动态
产品中心 Products
T形接续管
添加时间:2015/11/30 21:04:16
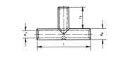
T形接续管

T形接续管,铜质,1.5-240mm2

标准型

用于多股绞合导线,如 VDE 0295 第 2 类

用于单芯电缆螺钉导线

特性:

退火材料可优化材料及其压接特性

经过特殊制造工艺的平接触表面

材料:符合 EN13600 的铜

表面:镀锡

1.5-240压图.png1.5-240表.png